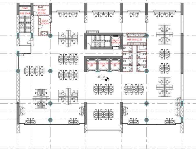
Baker Center is a 140,000 SQFT office building conveniently located in the government district of Edmonton.
Contact us